Situada na agradável Vila da Lourinhã, a 5 minutos da praia...
… e apenas a 50 minutos de Lisboa. Tranquilidade e qualidade de vida a uma curta distância da praia, cidade e campo.
A casa
A casa foi construída no ano de 2000, pelos proprietários para residência permanente. Houve, por isso, todo o cuidado na organização dos espaços, escolha de materiais e equipamentos.
A casa está implantada num lote de 500 m2, é constituída por rés-do chão, primeiro andar, amplo sótão e grande garagem em cave.
Distingue-se por divisões com grandes áreas, pela qualidade dos materiais e pela qualidade de construção.
A biblioteca, a cozinha, os armários embutidos, as portas e todo o soalho do primeiro andar foram executados em madeira de carvalho, em carpintaria tradicional.
A casa foi totalmente pintada no exterior em 2023. Está equipada com vidros duplos e estores com isolamento; aspiração central; aquecimento central; sistema de alarme com sensores nas janelas e portas.
Está pronta a habitar com fornecimento de água e eletricidade ativos e iluminação interior e exterior instalada. Stock de lenha para a lareira.
Contempla uma área exterior (jardim, logradouro e churrasqueira) de 352 m2. Nesta área existe um canil e um poço com nascente natural e bomba elétrica.
Conheça a sua nova casa...

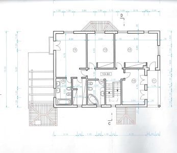
rés-do-chão
Sala | Quarto | Cozinha
E ainda uma sala de refeições, lavandaria e casa de banho.

jardim e garagem
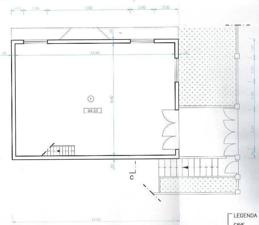
Capacidade para 5 carros
Toda a área de implantação da casa. Ampla, com 126 m2.
Planta de Implantação
Planta do Rés-do-Chão
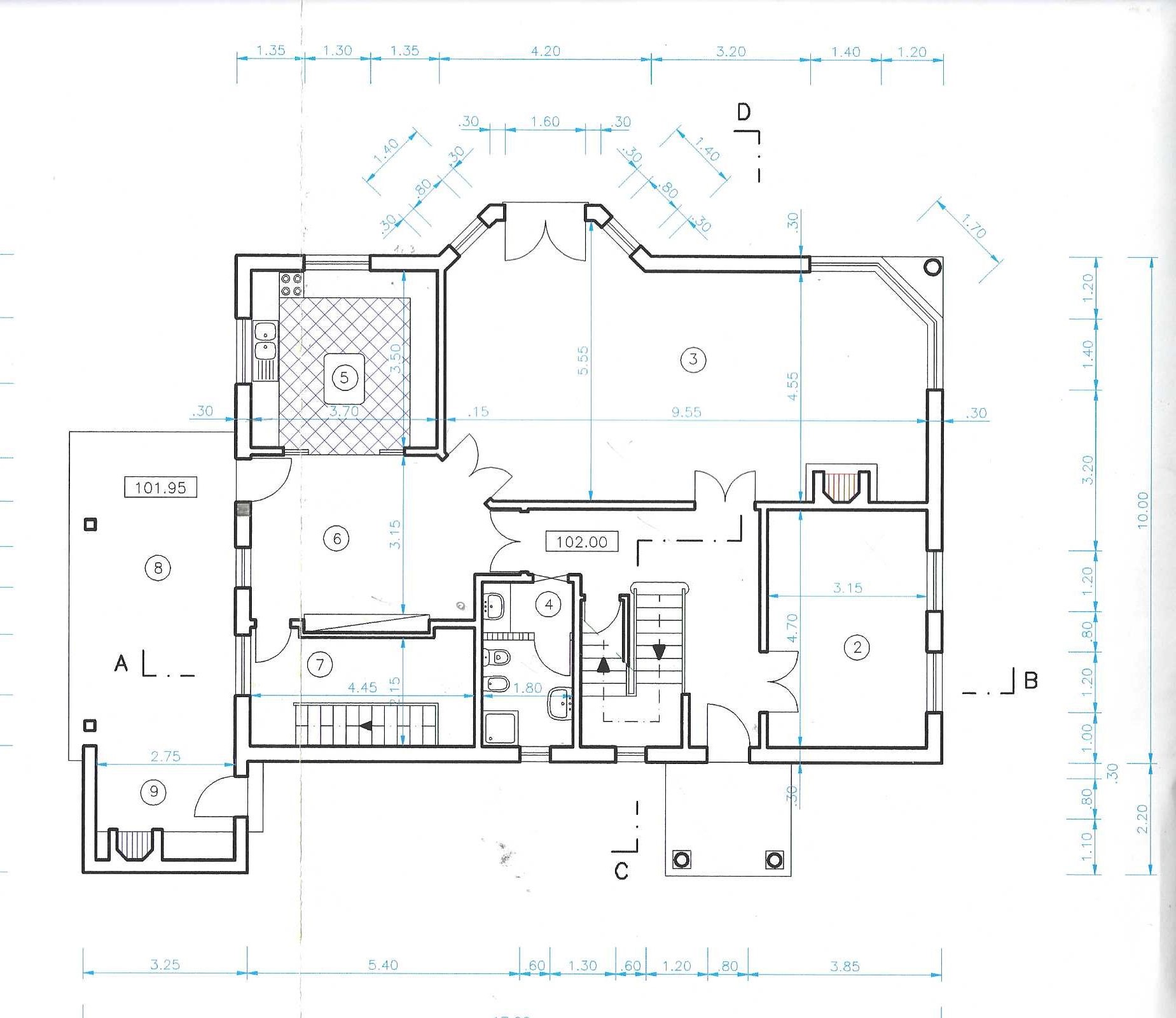
Planta do 1º andar
Planta da Garagem
Alçado Nascente
Alçado Sul
Alçado Poente
Alçado Norte
a destacar
características
421 m2 de área privativa
Lote de 500m2, com 148 m2 de implantação
5 quartos
3 WC´s
Garagem para 5 carros
Sótão
Churraqueira
Poço
Jardim
Poço
Canil
Churrasco
Alarme
Intercomunicador
Aquecimento central
Lareira com recuperador de calor
Aspiração central
Isolamento térmico
Placa de Fogão
Forno
Frigorífico
Máquina de lavar loiça
Máquina de lavar roupa
Máquina de secar
Tanque de roupa
Toalheiros aquecidos
Portão de rua automático
Portão de garagem automático
Chaminés de alvenaria com exaustão natural
Garagem onde pode construir ginásio, atelier ou grandes arrumos
Sotão onde pode construir 2 ou 3 quartos ou atelier
Certificado Energético Classe: C SCE305893028 Válido até 2033

